Canterbury
The Canterbury is a darling log home for the empty nesters
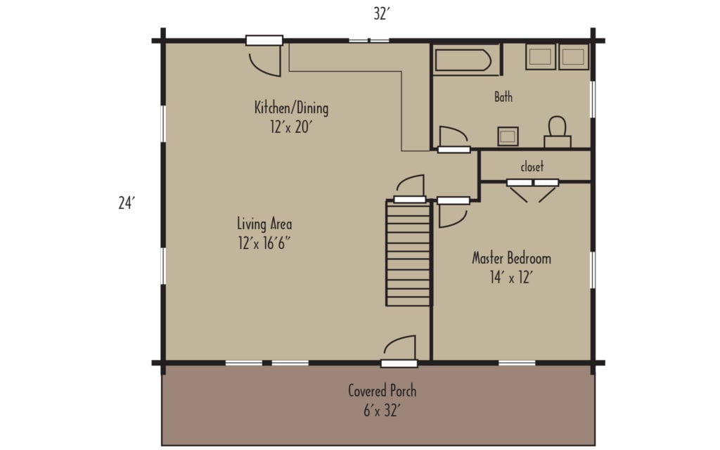
The Canterbury is a darling log home for the empty nesters looking to downsize or for the person just starting out. This home features one bedroom, one bath, and an open concept floor plan for the common areas. With a great farmer’s porch this log home has a lot to offer.
$1 Shipping in Eastern & Central Time Zone.
Call for shipping information to other areas: 1-800-308-7505
Package Details
Bedrooms
1
Bathrooms
1
Footprint
24′ x 32′
Square Feet
768
Open Concept
Yes
Tradesman Style Pricing
Pre-cut Log Package
$44,250
Shell
$72,250
6×8 Complete Package
$92,850
8×8 Complete Package
$100,300
Cedar
Call for Pricing
10×8 Log
Call for Pricing
6×12 Log
Call for Pricing
8×12 Log
Call for Pricing
Craftsman Style Pricing
Pre-cut Log Package
$52,000
Shell
$81,600
6×8 Complete Package
$103,950
8×8 Complete Package
$112,300
Cedar
Call for Pricing
10×8 Log
Call for Pricing
6×12 Log
Call for Pricing
8×12 Log
Call for Pricing

Photo Gallery
Pictures may vary from design





