Madison
The Madison Cabin is an attractive ranch style home.
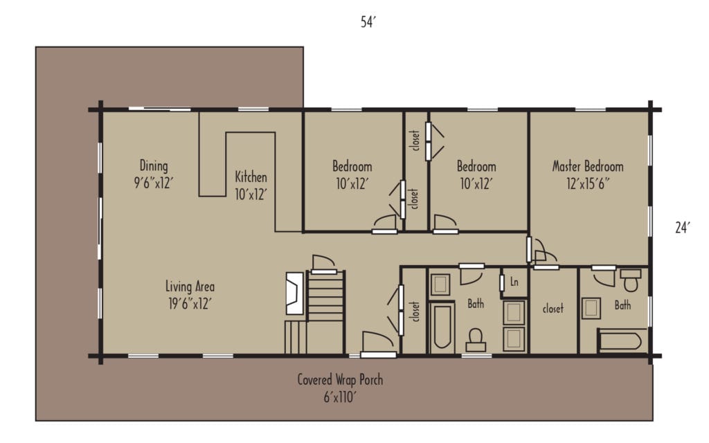
The Madison Cabin is an attractive ranch style home that offers it all. Cathedral ceilings and gable glass and a stunning entryway. Imagine entertaining on the wrap porch.
$1 Shipping in Eastern & Central Time Zone.
Call for shipping information to other areas: 1-800-308-7505
Package Details
Bedrooms
3
Bathrooms
2
Footprint
24′ x 54′
Square Feet
1,296
Cathedral Ceiling
Yes
Open Concept
Yes
Tradesman Style Pricing
Pre-cut Log Package
$74,500
Shell
$139,850
6×8 Complete Package
$185,050
8×8 Complete Package
$199,900
Cedar
Call for Pricing
10×8 Log
Call for Pricing
6×12 Log
Call for Pricing
8×12 Log
Call for Pricing
Craftsman Style Pricing
Pre-cut Log Package
$96,950
Shell
$164,550
6×8 Complete Package
$206,800
8×8 Complete Package
$223,350
Cedar
Call for Pricing
10×8 Log
Call for Pricing
6×12 Log
Call for Pricing
8×12 Log
Call for Pricing

Photo Gallery
Pictures may vary from design








